
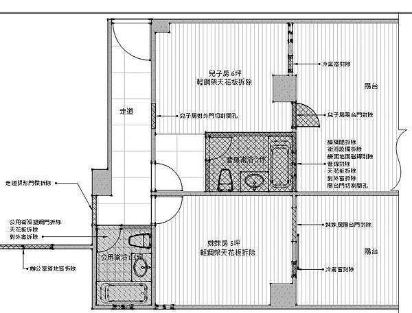
原始空間平面配置圖

拆除計畫

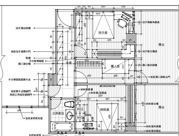
空間規劃配置平面圖

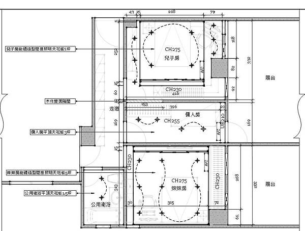
水電、燈具配置圖

外傭房

此空間因有2套衛浴.故拆除其中一間將空間規畫為外傭房

以節能隔音磚區隔出兩個獨立空間 讚啦

再油漆後就完成喔

進場拆除第一天

新增了一整面的衣櫃與床頭櫃.多了許多的收納空間.但整

這前後有沒有差很多呢?

為期3天的拆除、打鑿工程.....



天花板拆除後.眼尖的師傅發現......天啊!這是整

專業的施工團隊.立馬不辭辛勞的處理.還得爬上看了就腳

因未來外陽台將作為洗衣與曬衣空間.所以找出原本被磁磚

排水孔蓋與瓷磚復原

兒子房以紅磚封除門對門的那扇直對外陽台的門與窗型冷氣


拆除、打鑿、泥作、水電完成.就換木作工程進場囉

衛浴拆除後地磚鋪設與牆面水泥粉光


封2道對外陽台門(風水考量)+新增開一扇門

哇哇~~妹妹房完工



鞋櫃選用百頁門.鞋鞋通風、透氣,不怕潮濕。

系統櫃收納床組

外傭房完成--難怪裝修期間每次見到外傭女孩.她都笑容

以黑白色系作為男孩房的色調.更可呈現出其沉穩、內斂的


健康、無毒的系統環保板材特製的子母床


好有質感的門片,可隨意左右推移決定今天要哪個空間作開

這一整個工程從8/


義大利進口實木門

義大利進口實木門 好漂釀~超有質感的

鳳凰木百葉

鳳凰木百葉

美國進口鳳凰木百葉摺疊門 功能多多喔~~可保有隱密性、通風、陽光灑落範圍隨意調

